DIE WOHNUNGEN
Drei Einheiten.
Drei individuelle
Wohnkonzepte.
Im denkmalgeschützten Stadthaus entstehen drei hochwertig sanierte Eigentumswohnungen mit klarer Struktur und zeitgemäßer Ausstattung.
Jede Einheit besitzt ihren eigenen Charakter – geprägt von historischer Substanz und moderner Umsetzung.
DIE WOHNUNGEN
Drei Einheiten.
Drei Charaktere.
Jede Wohnung besitzt ihre eigene Struktur und Raumwirkung.
Individuelle Grundrisse, hochwertige Ausstattung und ein durchgängiges Gestaltungskonzept schaffen zeitgemäßen Wohnraum in historischer Umgebung.
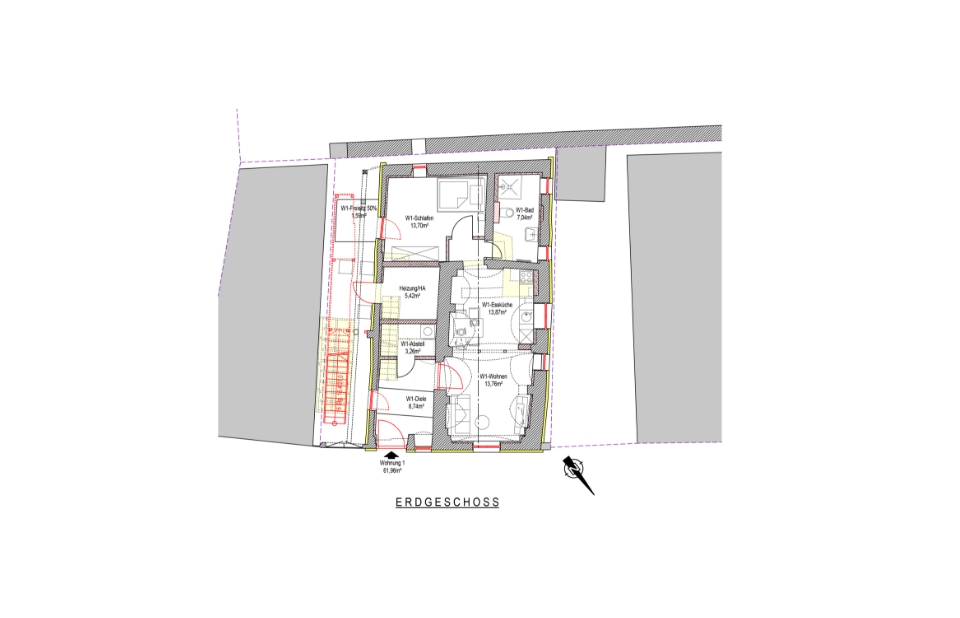
ERDGESCHOSS
Wohnung 01
64,46m²
Kompakte, effizient geschnittene Einheit mit klarer Raumstruktur.
Ideal für Kapitalanleger oder Eigennutzer mit urbanem Anspruch.
• durchdachter Grundriss
• moderne Badgestaltung
• hochwertige Ausstattung
• denkmalgerecht saniert




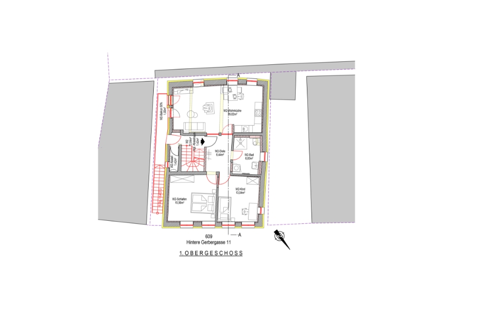
ERDGESCHOSS
Wohnung 02
72,04 m²
Harmonische Wohnstruktur mit großzügigem Wohn- und Essbereich.
Ein ausgewogenes Verhältnis von Funktionalität und Wohnqualität.
• klare Raumführung
• zeitlose Gestaltung
• hochwertige Materialien
• gute Vermietbarkeit


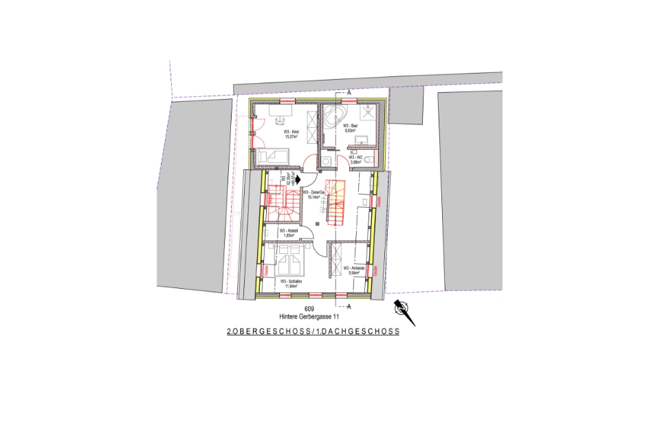
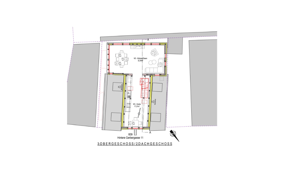
2. OBERGESCHOSS & DACHGESCHOSS
Wohnung 03
111,92 m²
Großzügige Einheit mit besonderer Raumwirkung und architektonischem Charakter.
• weitläufige Raumstruktur
• repräsentativer Wohnbereich
• individuelle Atmosphäre
• langfristige Perspektive





